产品中心


产品概述:
光伏储能逆变一体机箱变(光伏储能升压一体舱)是一种综合性的、包含了多种设备功能的光伏箱式变电站设备,将储能变流器、升压变压器、高压环网柜、低压配电箱等设备集成于一个集装箱内或组合为一体,其具有运输、安装、使用、维护简便的特点。PCS与升压变容量可根据客户需求灵活选配,即插即用,省时高效。传统储能系统需要单独购买储能变流器和升压器,并对二者进行耦合。自主生产的储能升压变流一体机兼具两种设备,降低了设备采购的成本,而且将升压和降压两次电压变换合并,提升了系统工作效率。

总体需求概况:

升压一体舱内包含1台1.25MW的PCS(甲 方提供)和1台容量为1250kVA 10kV/0.69kV的干式变压器及其配套设备。

通用要求:
1、防腐等级:C3
2、升压变压器绝缘等级:F 级;材质:铜;能效水平 SCB11,满足 1.1 倍过载。
3、LOGO、升压一体舱铭牌及喷涂需要与我司技术人员确认,舱体默认颜色沟通后确认
4、升压一体舱配备的UPS应满足不间断供电半小时

光伏储能逆变一体机箱变技术要求:
1.要求升压一体舱具有对外通讯功能,具备 RS485、TCP/IP 以太网、干接点接口.
2.运行时外壳应接地(金属外壳).
3.压一体舱必须与电池设备配合,确保电池性能发挥最优,同时需与上端 EMS等设备配合,确保各功能可靠实现.

外观与结构:

1.外形尺寸及结构应设计合理,便于安装、巡视和检修.
2.应能承受短路电流产生的热稳定和动稳定,以及搬运、使用中的电动、机械强度和防磁等干扰要求.
3.外壳应采用不小于 1.5mm 厚冷轧钢板制作.
4.柜门的开合角度不应小于 90°,灵活启闭.
5.焊接、组配、防腐处理等工艺应符合相关标准,无虚焊、毛刺、撕边、搭接不工整等现象.
6.配电柜应按业主相关要求统一安装安全警示标识.

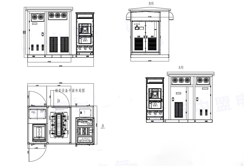
外形尺寸:

1.jpg


电话咨询
技术热线
微信咨询
返回顶部